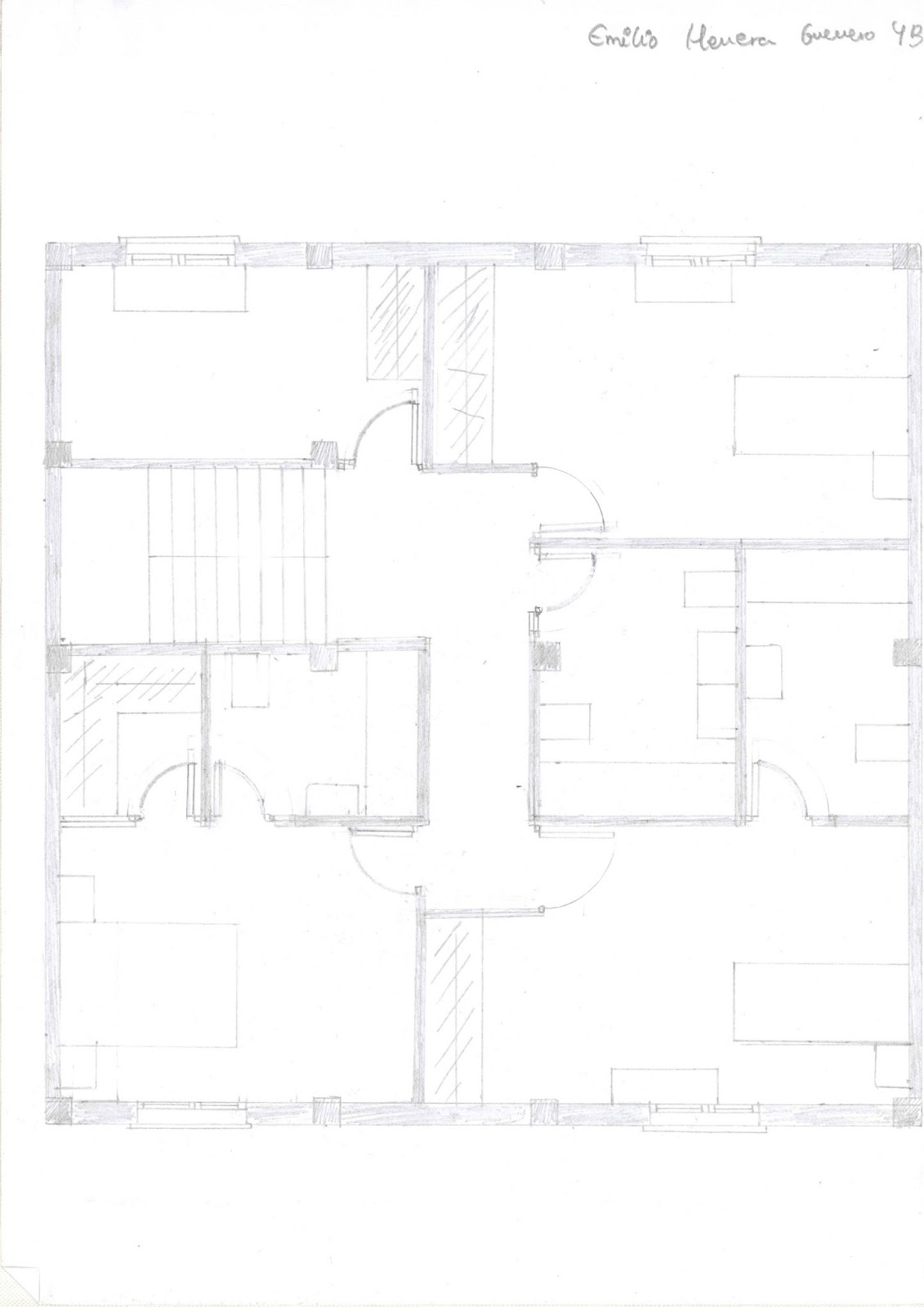
En este trimestre Miguel nos dio un solar de 10 X 15 metros. En el solar teníamos que construir una casa de 10 X 10 y un patio de 5 X 10 pero yo en el patio no he hecho nada. La casa dije que era para una familia de cuatro personas: una pareja y dos niños de 12 y 10 años. La casa tenía que tener dos plantas y una buhardilla En la planta baja tenía que tener una cochera, una cocina, un salón- comedor, y un aseo o lavadero y por supuesto una escalera que comunicara las tres plantas. Yo en la primera planta he hecho todo excepto el lavadero que lo tengo en la cocina.
En la segunda planta había que poner habitaciones, cuarto de baño y vestidor. Yo en mi planta arriba tengo cuatro habitaciones, un cuarto de baño principal y en dos de esas habitaciones tiene un cuarto de baño cada una y la habitación principal también tiene un vestidor.
Y por ultimo en la buhardilla solo Miguel nos dio libertad para poner lo que quisiéramos yo he puesto un aseo porque la buhardilla es para que los niños jueguen.
Luego, cuando terminamos los planos hecho con escuadra y cartabón lo hiciéramos con un programa llamado QCAD.
Cuando hicimos esto también tuvimos que hacer la perspectiva isométrica.
Al terminar la perspectiva lo hicimos con otro programa llamado sketchUp y yo hice la parte que se ve el patio y me quedó así:
Y por ultimo del trabajo era hacer la sección:







No hay comentarios:
Publicar un comentario